Welcome To Propfeets Info Solutions

info@Propfeets.com

+91 - 7388391919

Modal Example


IQ Lifestyle Plaza

Commercial Shop, Retail Space
Price: On Request
RERA
No Brokerage

Overview of IQ Lifestyle Plaza

Project Area 0 / Sq-ft
Project Type COMMERCIAL
Property Type New Property
Possession Status Under Construction
Possessions Start From 01-Apr-2026
Configurations Commercial Shop, Retail Space
RERA No: UPRERAPRJ501217

For more information, please scan the QR Code.

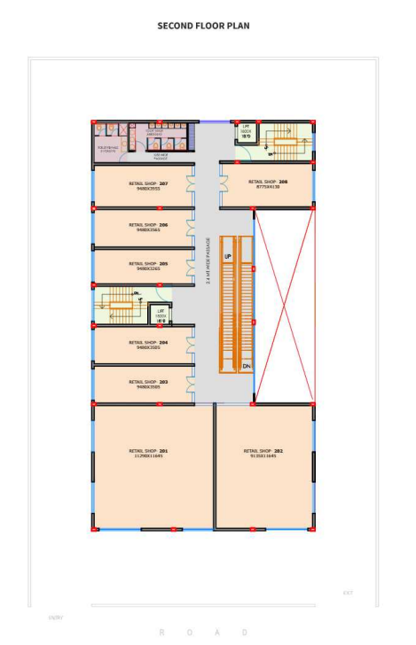
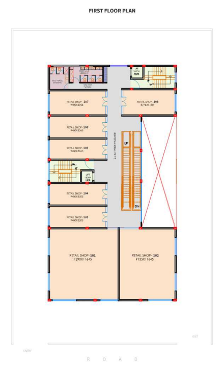
Floor Plan & Pricing

Recommended Seller

Amenities of IQ Lifestyle Plaza

Park
Open/Covered Gym
Swimming Pool for kids & Adults
Internal Street Light
Vastu Compliant
Fire Fighting System
24*7 Power Backup
24*7 Water Supply
24*7 Security & CCTV Surveillance
Rain Water Harvesting
Earthquake Resistant
Indoor Play Area
Open, Covered & Basement Parking
Grocery Shop
Landscaping & Trees
Visitors Parking
24*7 Maintenance Staff
Security/Fire Alarm
Internal Road & Footpaths
Conference Room
Solid Waste Management
Sewage Treatment
Electrical Meter Room
Amphitheater
water Tap
Squash Court
Medical Store
Healthcare Centre & School Plot with the Township
Fire Sprinklers

Specification of IQ Lifestyle Plaza

    1. Modern Architecture
    2. Glass Facade
    3. Escalator & Elevators
    4. Spacious Lobby
    5. G+5 Floor
    6. 2 Level of Parking
Show more

Brochure of IQ Lifestyle Plaza

Download Brochure

BROCHURE

Properties posted by Owners

Description of IQ Lifestyle Plaza

IQ Lifestyle Plaza is one of the commercial developments of Pacific Habitat. The project offers commercial shops at very competitive and affordable price. The site is well connected by different modes of transportation and is in close proximity of various civic utilities. The project is well equipped with all modern amenities and 24X7 security service to facilitate the business. Starting price is 26 Lacs.

IQ Lifestyle Plaza is a commercial retail project with modern architecture,...

Read More...

Ratings

Location
5
Safety
5
Transport
5
Connectivity
5
Shopping
5

Similar Projects

RLV Octavia
New Property

By Aman Singh

Sushant Golf City, Lucknow, Lucknow

Office Space, Commercial Shops BHK 0 - 00 Sq-ft

Price: On Request
Tulsiani Golf View Apartments
Ready To Move

By Aman Singh

Sushant Golf City, Lucknow, Lucknow

3 BHK, 4 BHK BHK 2345 - 2967 Sq-ft

Price: On Request
Urban Woods (Phase 1&2)
New Property

By Aman Singh

Sushant Golf City, Lucknow, Lucknow

2 BHK, 3 BHK BHK 768 - 1560 Sq-ft

Price: On Request
One Oak Natura
New Property

By Aman Singh

Sushant Golf City, Lucknow, Lucknow

3 BHK, 3 BHK+Servant BHK 1295 - 1413 Sq-ft

Price: On Request
Ansal API Greenfield Residencia
Ready To Move

By Aman Singh

Sushant Golf City, Lucknow, Lucknow

2 BHK BHK 1057 - 1057 Sq-ft

Price: On Request
Ansal Celebrity Gardens
Ready To Move

By Aman Singh

Sushant Golf City, Lucknow, Lucknow

2 BHK, 3 BHK & 4 BHK BHK 1295 - 2218 Sq-ft

Price: On Request
BLISS DELIGHT
New Property

By Aman Singh

Sushant Golf City, Lucknow, Lucknow

2 BHK BHK 1240 - 1290 Sq-ft

Price: On Request
Pardos Okas Enclave
Ready To Move

By Aman Singh

Sushant Golf City, Lucknow, Lucknow

Residential Plots BHK - Sq-ft

Price: On Request
Pardos Okas Residency I & II
New Property

By Aman Singh

Sushant Golf City, Lucknow, Lucknow

2 BHK, 3 BHK BHK 870 - 1656 Sq-ft

Price: On Request

Leading Real Estate Developers

Disclaimer

This website is only for the purpose of providing information regarding real estate projects in different regions. By accessing this website, the viewer confirms that the information including brochures and marketing collaterals on this website is solely for informational purposes and the viewer has not relied on this information for making any booking/purchase in any project of the company. Nothing on this website constitutes advertising, marketing, booking, selling or an offer...